| 物件所在地 | 京都府京都市下京区室町仏光寺上ル白楽天町514 |
| 最寄り駅 | 電車:地下鉄 四条駅 徒歩3分 電車:阪急 烏丸駅 徒歩3分 |
| 構 造 | RC造(鉄筋コンクリート造) |
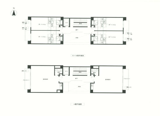
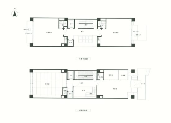
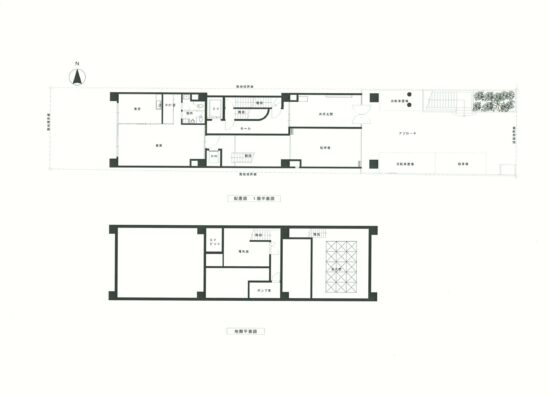
| 規 模 | 地上 10階建 |
| 竣工年月 | 1989年 12月 |
| 総戸数 | 18戸 |
| 駐車場 | 無し |
| 自転車駐輪場 | 無し |
| バイク置場 | 原付可、中型・大型不可 |
| 電 気 | 指定なし |
| 水 道 | 公営 |
| ガ ス | 都市ガス |
| 共用設備 | インターネット設備(NTTフレッツ光プレミアム)、BS対応 中川工務店24時間緊急対応 |
| 住戸設備 | キッチン(ガスコンロ無し)、風呂(UB)、トイレ、独立洗面台 洗濯機置場(室内)、エアコン1基、ガス給湯 |



