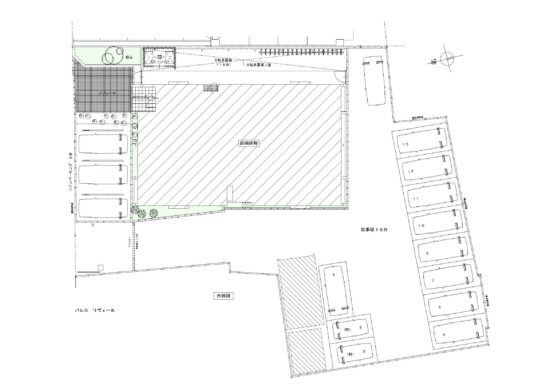
| 物件所在地 | 京都府京都市右京区太秦宮ノ前町10-2 |
| 最寄り駅 | 電車:JR山陰本線 太秦駅 徒歩8分 |
| 構 造 | RC造(鉄筋コンクリート造) |
| 規 模 | 地上5階建 |
| 竣工年月 | 2011年9月 |
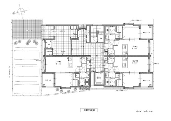
| 総戸数 | 18戸 |
| 駐車場 | 16台 |
| 自転車駐輪場 | 19台(ラック式) |
| バイク置場 | 原付サイズOK(排気量問わず) |
| 電 気 | 指定なし |
| 水 道 | 公営 |
| ガ ス | 都市ガス |
| 共用設備 | インターネット設備(NTTフレッツ光プレミアム光配線・フレッツ光ネクスト光配線) 宅配ボックス、BS/CS対応、カラーモニタ付インターホン 中川工務店24時間緊急対応 |
| 住戸設備 | 下足入、キッチン(コンパクトキッチン(w:1800)ガラストップコンロ2口) 独立洗面台(シャンプードレッサー)、24時間換気システム、浴室乾燥機 洗濯機置場(室内)、風呂(追い焚機能付)、3点給湯(ガス) トイレ(温水洗浄便座)、エアコン1基(LDkに設置) 床(LDK、洋室、廊下は硬質塩ビシート)、網戸有り ディンプルキー2ロック |




