| 物件所在地 | 京都市東山区大和大路通四条下る四丁目小松町616番地 |
| 最寄り駅 | 京阪本線 祇園四条駅 徒歩7分 阪急京都線 河原町駅 徒歩9分 |
| 構 造 | RC造(鉄筋コンクリート造) |
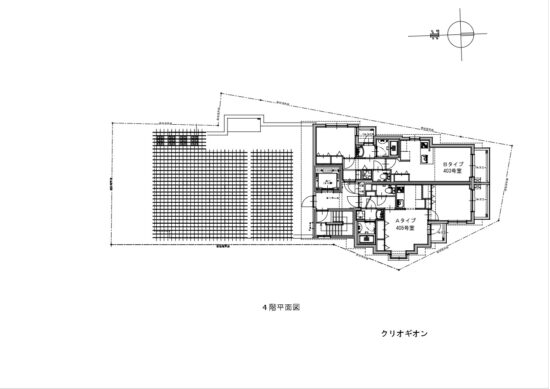
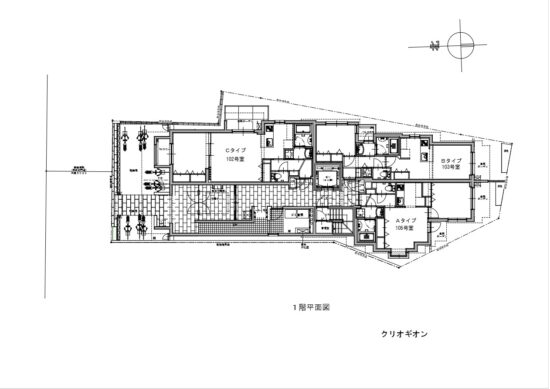
| 規 模 | 地上 4階建 |
| 竣工年月 | 2017年3月 |
| 総戸数 | 13戸(1LDK:13戸) |
| 駐車場 | 無し |
| 自転車駐輪場 | 18台 |
| バイク置場 | 無し |
| 電 気 | 指定なし |
| 水 道 | 公営 |
| ガ ス | 都市ガス |
| 共用設備 | インターネット設備(光対応;NTT) 宅配ボックス、CATV(BS/CS110°)、カラーモニタ付インターホン 中川工務店24時間緊急対応 |
| 住戸設備 | キッチン(w:1,800 2口ガスコンロ) 下足入、風呂(追い焚機能付)、トイレ(温水洗浄便座付) 独立洗面台(シャンプードレッサー)24時間換気システム、浴室乾燥機 洗濯機置場(室内)3点給湯(ガス)、エアコン(各住戸・2基設置) 床(LDK、洋室、廊下は木目調・硬質塩ビシート)、ディンプルキー2ロック |
| 備考 | ☆火災保険指定あり 入居者様と弊社との直接手続きとなります。 ☆引越し業者指定あり ☆保証会社加入必須 |




